Logo print
Lieber Leser,
unsere Seite finanziert sich durch Werbeeinnahmen und die deshalb angezeigten Werbebanner.
Helfen Sie uns, indem Sie Ihren Werbeblocker ausschalten.
Werbung

Das Informationsportal für Stadt und Landkreis Freising

Werbung
<a href=//www.fs-live.de/out.php?wbid=4141 target=_blank></a>

Walpertskirchen / Vielseitig nutzbare Gewerbefläche u. a. als Büro - in ruhiger Umgebung!!!


Beschreibung:
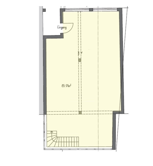
Diese attraktive und helle Gewerbeeinheit, mit einer Gesamtfläche von ca. 119 m², verteilt sich auf das Erd-/ und Untergeschoss und eignet sich perfekt u.a. für Büros aller Art oder auch Selbständige mit Platz für Mitarbeiter und Kollegen. Das Objekt befindet sich verkehrsgünstig gelegen in einer ruhigen Lage von Walpertskirchen. Das Bestandgebäude wurde 1992 um diesen Anbau erweitert. Der Hauptbereich im Erdgeschoss verfügt über eine Fläche von ca. 86 m² und ist mit einem hellen Fliesenbelag versehen. Sehr praktisch in Verbindung mit der vorhandenen Fußbodenheizung. Die große Fensterfront auf der Südseite (mit Beschattungsmöglichkeit) lässt viel Tageslicht herein, sodass die Räume stets hell beleuchtet sind. Auf dieser Etage wurde noch ein separates Einzelbüro (Trockenbau) geschaffen, welches sich auch bei Bedarf einfach zurückbauen lässt. Außerdem ist bei der Gewerbeeinheit ein Glasfaseranschluss nutzbar und die Räume verfügen bereits eine EDV-Verkabelung (CAT6a).
Die installierte Klimaanlage sorgt auch an heißen Tagen für entsprechende Abkühlung. Über eine interne Treppe gelangt man zum Untergeschoss der Einheit. Hier gibt es einen Platz für ihre Küche, einen großzügigen Einbauschrank, zwei getrennte WCs (Damen und Herren) sowie einen Lagerraum. Parkmöglichkeiten befinden sich in unmittelbarer Umgebung. In den aufgeführten Betriebs-/Nebenkosten ist der Verbrauchstrom bereits enthalten. Die Fläche kann spätestens ab 1. März 2026 bezogen werden; ein früherer Bezug ist nach Absprache ebenso möglich. Der Mietvertrag soll eine moderate Mietstaffelung enthalten.

Lage:
Den Ostbahnhof erreichen Sie bequem in nur ca. 25 Minuten! Die nächstgelegene S-Bahn-Station St. Koloman (S2) ist ca. 15 Minuten entfernt. Ebenso befindet sich in der Nähe der Flughafen München (ca. 20 Fahrminuten). Die Autobahnauffahrten Pastetten (A94 Richtung München) bzw. Lengdorf (A94 Richtung Passau) sind mit dem PKW ebenso in wenigen Minuten zu erreichen.





Details:

ObjektNr.: 2615
Objektart.: Büro / Praxis
Angebotsart: Miete / Pacht
Nutzungsart: Gewerbe

Ort: 85469 Walpertskirchen

Kaltmiete: 950,00 €
Nebenkosten: 430,00 € (Heizkosten enthalten)
Provisionspflichtig: Ja
Provision: 1,19 Monatskaltmiete inkl. gesetzl. MwSt.


Gesamtfläche: 119.0 m²
Buerofläche: 119.0 m²
Zimmer: 2,0

Ausstattungskategorie: STANDARD
Baujahr: 1968
Fliesenboden: Ja
Zentralheizung: Ja
ölheizung: Ja
Abstellraum: Ja
Energiepass: Bedarf
Energiepass Gültigkeit: 08.02.2027
Endenergiebedarf: 210.9


verfügbar ab: 01.03.2026, auch früher möglich




Anbieter:
Um diesen Bereich anzuzeigen, muss vorher den Cookies zugestimmt werden:
Cookie-Einstellungen


Karl Kainz Immobilien GmbH


Am Wasserturm 12
Erding

Tel.: 08122 / 41860
08122 / 41881
E-Mail senden





Bilder:


Kooperationen


ED-live.de FM-live.de