Logo print
Lieber Leser,
unsere Seite finanziert sich durch Werbeeinnahmen und die deshalb angezeigten Werbebanner.
Helfen Sie uns, indem Sie Ihren Werbeblocker ausschalten.
Werbung

Das Informationsportal für Stadt und Landkreis Freising

Werbung
<a href=//www.fs-live.de/out.php?wbid=4133 target=_blank></a>

KREIPL-IMMO-Erding- preiswerte City-ETW- Loggia-Selbstbezug ca. 107m²


Beschreibung:

Erding - Stadt sehr große ca. 107 m² ETW mit Loggia zum SELBSTBEZUG.

Die Wohnung erstreckt sich über zwei Ebenen eines Mehrfamilienhauses, TOP: Kaminanschluss für einen Holzofen, Wohnbereich mit Loggia, extra Küche, Badezimmer m. Wanne Dusche, extra WC und gemauerten Keller.

TOP: Wohnanlage in zentraler Lage
TOP: Zum Selbstbezug oder Kapitalanlage
TOP: Schöne Raumaufteilung
TOP: mit Kaminanschluss für einen Holzofen
TOP: gemauerter Kellerraum
TOP: 2022 wurde ein neuer Fernwärmeanschluss verlegt, leider wurde der Energieausweis noch nicht angepasst.

Der Kaufpreis der Wohnung beträgt 429.000,-EUR.

Auf Wunsch kann noch ein TG Stellplatz für 21.000,-EUR erworben werden.

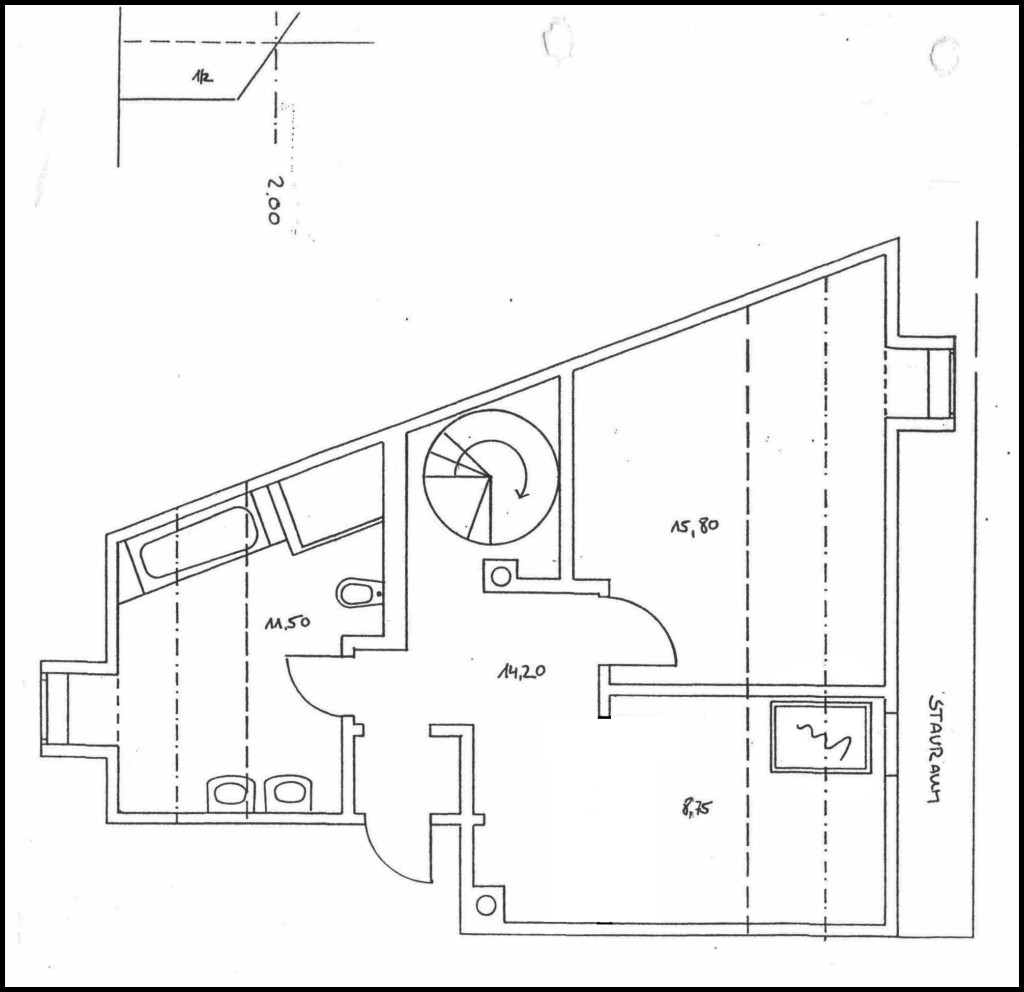
erste EBENE der Wohnung:
Die Wohnung hat eine großen Wohnbereich mit Zugang zum schönen Wohnbereich mit Wintergarten nach Westen. Ebenso ist eine Wohnküche vorhanden.

Eine separate Küche ist auch vorhanden. Die EBK ist inklusive.
Ein separates WC ist auch vorhanden.

zur Zweite Ebene ist auch ein zusätzlich Zugang über das Treppenhaus (Möbeltransport) möglich, die Wohnung hat 2 Hauseingangstüren.

Hier sind eventuell auch 2 Zimmer möglich, ein gefliestes Badezimmer mit exklusiver Wanne, Dusche, Fenster und WC. Waschmaschinenanschluss.

Über das Treppenhaus geht es zum Keller und zur TG.

Energiepass Art - Verbrauchsausweis
Energiebedarf - 120,90 kWh-(m²a)
Energieeffizienzklasse - D
Ausweis gültig bis - 05.09.2026
Baujahr Gebäude - 1985
Wesentliche Energieträger - Erdgas
Neue Heizung ab 2022.


Lage:
Kurze Wege in die Innenstadt oder zu Einkaufsmöglichkeiten und zur Erholung ist die Erdinger Therme zum Greifen nah.

Verkehrsgünstige Lage:
Ärztehaus, Schule, Kindergarten, S-Bahnhof, Einkaufszentrum in zentraler Lage

Freizeitangebot: Der Krontalerweiher in Erding ist ein sehr beliebtes Freizeitdomizil. Er bietet allen Sonnenanbetern, Wasserratten und Grillfreunden allerbeste Freizeitmöglichkeiten, unter anderem Minigolf.

Ausstattung:

KREIPL-IMMOBILIEN sucht laufend Miet- und Verkaufsobjekte in jeder Größe. Auch für vorgemerkte Kunden. Schnelle diskrete Bearbeitung u. GÜNSTIGE PREISE.

Wir bieten kompetente Beratung u.Verkauf, gepaart mit 38 - jähriger Erfahrung und kostengünstige Konditionen.

Bei Interesse am Objekt oder wenn Sie eine Beratung zu Ihrer Immobilie wünschen, schreiben Sie uns eine kurze E-Mail an Kreipl-Immobilien@t-online.de (w.Datenschutz) wir melden uns sofort bei Ihnen.






Details:

ObjektNr.: A1073
Objektart.: Wohnung
Angebotsart: Kauf
Nutzungsart: Wohnen

Ort: 85435 Erding

Kaufpreis: 429.000,00 €
Provision: 2,38% Käuferprovision inkl. MwSt. vom Kaufpreis


Wohnfläche: 107 m²
Zimmer: 3
Unterkellert: JA

Baujahr: 1985
Zentralheizung: Ja
Gasheizung: Ja
Tiefgarage: Ja
KabelSatTV: Ja
Wasch-/Trockenraum: Ja
Energiepass: Verbrauch
Energiepass Gültigkeit: 05.09.2026
Energieverbrauchskennwert: 120.9 kwh/(m2*a)
Energiepass Warmwasser: Ja





Anbieter:
Um diesen Bereich anzuzeigen, muss vorher den Cookies zugestimmt werden:
Cookie-Einstellungen
Kreipl Immobilien


Lange Zeile 26
Erding

Tel.: 08122 / 90 00 90
08122 / 90 01 92
E-Mail senden





Bilder:


Kooperationen


ED-live.de FM-live.de