Logo print
Lieber Leser,
unsere Seite finanziert sich durch Werbeeinnahmen und die deshalb angezeigten Werbebanner.
Helfen Sie uns, indem Sie Ihren Werbeblocker ausschalten.
Werbung
Logo von ED-live.de

Das Informationsportal für Stadt und Landkreis Freising

Werbung
<a href=//www.fs-live.de/out.php?wbid=2971 target=_blank></a>

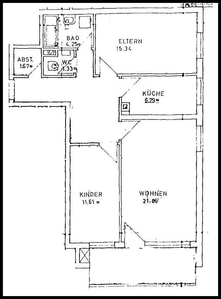
Erding-Klettham große 3 Zi. Wohn. ca. 75 m² mit Balkon


Beschreibung:

Erding - eine ca. 75 m² große 3 Zi. Wohnung mit großem Balkon und Lift im Haus, große gemeinschaftliche Gartenanlage.

Für Mietobjekte: Liebe Interessenten, jetzt auch aus Datenschutzgründen, bitte Anfragen nur noch per E-Mail. Erklärung - siehe nächste Spalte. Danke für Ihr Verständnis. Leider keine Haustiere.

TOP: Bezug ab 01.03.2026 oder n. VB
TOP: großes Wohnzimmer mit Parkett und Balkon
TOP: schöner großer Balkon
TOP: Lift im Haus
TOP: schöne gepflegte Anlage
TOP: ein TG-KFZ Stellplatz 80.- mtl. zuzüglich
TOP: kurze Wege in Zentrum oder zur S-Bahn

Im geräumigen und hellen Wohnzimmer das mit Parkettboden ausgestattet ist hat man sehr viel Platz für einen gemütlichen Wohnraum.

Der große sonnige Balkon, der auch über den Wohnraum erreichbar ist, bietet genug Platz für Stühle, Liegen und einen Tisch.

Schlafzimmer und Kinderzimmer haben eine schöne Größe und sind sehr hell, in den Zimmern sind helle Böden verlegt.

In der Küche ist ein Fenster, und die Küche ist ohne Einbauküche.

Das hell geflieste Badezimmer ist mit einer Badewanne und einem Waschmaschinenanschluss ausgestattet,

das WC ist separat.

Der bequeme Lift im Haus ermöglicht Ihnen Einkäufe ohne großen Kraftakt in die Wohnung zu transportieren.

Im Keller des Hauses ist für diese Wohnung noch ein extra Kellerabteil und ein Fahrradkeller, der gemeinschaftlich genutzt wird.

Energiepass Art - Verbrauchsausweis -
Energiebedarf - 96,35 kWh-(m²a)
Energieeffizienzklasse - C
Ausweis gültig bis - 07.03.2031
Baujahr Gebäude - 1970
Wesentliche Energieträger - Erdgas
Baujahr Wärmeerzeuger - 2020










Lage:

In Erding gibt es eine hervorragende Infrastruktur, großes Freizeitangebot z.B. Naherholungsgebiet mit großem Badesee, exzellente Verkehrsanbindungen wie S- Bahn (S2) Busverbindung, Schulen und Kindergärten.

Das moderne Erding bietet ein Einkaufs- und Unterhaltungszentrum mit Geschäften des täglichen Bedarfs, Boutiquen, Kaufhäusern, Restaurants und Cafés, Kino-Center und das bekannte Erdinger Thermenbad

Ausstattung:
Nach Ihrer E-Mail-Anfrage wird Ihnen ein BEWERBUNGSBOGEN mit Begleittext für Mietobjekte zugesendet, ebenso kann es leider auch dazu kommen, dass Aufgrund der hohen Nachfrage eine Antwort oder die Versendung des Bewerbungsbogen nicht mehr möglich ist. Dafür möchte wir uns Entschuldigen. Da der Bewerbungsbogen zur Anfragenbearbeitung notwendig ist, bitten wir Sie deshalb, von telefonischen Anfragen u. persönlichen Besuchen abzusehen. Natürlich sind alle Angaben freiwillig. Vielen Dank für Ihr Verständnis. Die KREIPL-KELLNBERGER-IMMOBILIEN-GMBH sucht laufend Miet- und Verkaufsobjekte in jeder Größe für unsere vorgemerkten Kunden. Wir bieten kompetente Beratung, gepaart mit 38 -jähriger Erfahrung.





Details:

ObjektNr.: A868
Objektart.: Wohnung
Angebotsart: Miete / Pacht
Nutzungsart: Wohnen

Ort: 85435 Erding

Kaltmiete: 900,00 €
Warmmiete: 1.110,00 €
Nebenkosten: 210,00 € (Heizkosten enthalten)

Kaution: 2.700,00 €

Tiefgarage: 1 Stellplätze Preis: 80,00 €
Wohnfläche: 75 m²
Zimmer: 3
Unterkellert: JA

Baujahr: 1970
Parkettboden: Ja
Zentralheizung: Ja
ölheizung: Ja
Personenfahrstuhl: Ja
Freistellplatz: Ja
Wasch-/Trockenraum: Ja
Energiepass: Verbrauch
Energiepass Gültigkeit: 02.03.2031
Energieverbrauchskennwert: 57.79 kwh/(m2*a)
Energiepass Warmwasser: Ja





Anbieter:
Um diesen Bereich anzuzeigen, muss vorher den Cookies zugestimmt werden:
Cookie-Einstellungen
Kreipl-Kellnberger-Immobilien GmbH


Lange Zeile 26
Erding

Tel.: 08122 / 90 00 90
08122 / 90 01 92
E-Mail senden





Bilder:


Kooperationen


ED-live.de FM-live.de